


The KYN28A-12 is an indoor metal-clad withdrawable switchgear, commonly referred to as a draw-out switchgear. Designed for three-phase AC power systems with a rated voltage of 12kV and a frequency of 50Hz, it is suitable for single-busbar and single-busbar sectionalized systems.
Primary application scenarios include:
1.Power Plants and Substations: Function as power transmission units for small-to-medium generators and as receiving/transmitting units for secondary substations within power systems.
2.Industrial and Mining Enterprises: Serving as distribution centers in large factories, metallurgical plants, petrochemical facilities, and similar enterprises to control and protect large equipment such as high-voltage motors.
3.Commercial and Public Facilities: Suitable for distribution rooms in high-rise buildings, residential complexes, hospitals, schools, and similar locations, functioning as efficient hubs for electrical power distribution.
4.Other Applications: Can be installed in containerized substations or used for starting control of large high-voltage motors.

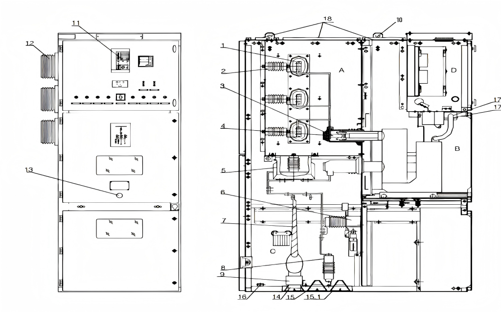
● High Safety and Reliability: Equipped with comprehensive and reliable mandatory mechanical “five-prevention” interlocking devices, effectively preventing misoperations such as mistakenly opening or closing circuit breakers, operating isolating switches under load, installing grounding wires under live conditions, closing switches with grounding wires in place, and entering live compartments. This ensures comprehensive protection for personnel and equipment safety.
● Superior Structural Design: Cabinet doors feature viewing windows for easy monitoring of internal component status. All operations can be performed with doors closed, delivering high protection rating (IP4X).
● Maintenance Convenience and Adaptability: Features like rotary disconnect switches allow safe access to the circuit breaker compartment for maintenance while the main bus is energized. The cable compartment offers ample space for installing and connecting multiple cables.

● Ambient Temperature: -5°C to +40°C, with a 24-hour average temperature not exceeding +35°C.
● Altitude: Installation site altitude not exceeding 1000 meters (if exceeding this altitude, derating is required based on specific conditions).
● Ambient Humidity: Daily average relative humidity ≤95%, monthly average relative humidity ≤90%.
● Site Conditions: Free from severe vibration and impact, fire or explosion hazards, significant contamination, and chemical corrosion. Seismic intensity not exceeding 8 degrees.

|
Item |
Unit |
Value |
|
|
Rated voltage |
KV |
12 |
|
|
Rated insulation level
|
1min.PE.withstand voltage |
KV |
42/48 |
|
Lightning impulse withstand voltage |
KV |
75/85 |
|
|
Rated frequency |
Hz |
50 |
|
|
Rated current |
A |
1250 |
|
|
Rated short-time withstand current(4s) |
KA |
31.5 |
|
|
Rated peak withstand current※ |
KA |
80 |
|
|
Protection class |
|
IP4X(door opened:IP2X) |
|
|
Outline dimension(width×depth×height) |
mm |
900(1100)×1000×2300 |
|
|
Weight |
kg |
800-1100 |
|
